東京都大田区大森本町2丁目に位置する〈プレール大森EAST〉は、2002年12月(実質築2003年1月)竣工、鉄筋コンクリート造・地上9階建て・総戸数約48戸の分譲賃貸マンションです。最寄り駅は平和島駅(京浜急行本線)で徒歩わずか3分の好立地。通勤・通学や都心アクセスにも優れており、駅近ながら落ち着いた住環境を実現しています。 お部屋はシングル向けの1K・専有面積約20~22㎡のプランが中心で、南向きの住戸もあり日当たりも期待できます。 共用設備として、オートロック・宅配ボックス・エレベーター・防犯カメラなどが整備され、暮らしやすく、安心感のある住まいとなっています。 近隣にはコンビニ・スーパーが徒歩圏に揃っており、生活利便性も高め。海にほど近いベイサイドエリアという点も特徴で、暮らしにほどよい落ち着きを与えてくれる物件です。気になる方はぜひ、一度現地をご覧になってはいかがでしょうか。
「プレール大森EAST」について

「プレール大森EAST」の物件概要
| 所在地 | 東京都大田区大森本町2丁目 |
|---|---|
| 最寄駅 | 京急本線/平和島駅 徒歩3分 |
| 築年数 | 2003/01 |
| 間取り | 1K |
| 構造 | 鉄筋コンクリート造 |
「プレール大森EAST」の室内詳細
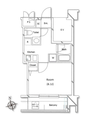
間取り

水道(公営) / ガス(都市) / 排水(下水) / バス専用共同(専用) / トイレ専用共同(専用) / バス・トイレ別 / シャワー / コンロ種別(ガス) / コンロ口数(二口) / システムキッチン / 給湯 / エアコン / 室内洗濯機置き場 / CATV / オートロック / エレベータ / バルコニー / フローリング / 宅配ボックス / internet対応(その他インターネット) / TVドアホン / 独立洗面台 / カード決済(初期費用) / クローゼット / シューズボックス / 保証人不要 / 分譲賃貸
※設備をクリック頂くと設備で条件を絞ることが可能です。
共用部

エントランスにはオートロック・モニター付きインターホンを備えており、居住者の安全・安心に配慮された設計となっています。 また、宅配ボックスやエレベーター、駐輪場、24時間ゴミ出し可能な敷地内ごみ置き場など、日常生活をスムーズにサポートする共用設備も充実しています。 外壁タイル貼りの落ち着いた外観・共用部のデザインも、分譲賃貸マンションならではのグレード感を感じさせるポイントです。
キッチン

居室内のキッチンには、2口以上のガスコンロが対応しているシステムキッチン仕様が採用されており、調理の幅も広がります。 ステンレスのシンク・作業スペースが確保されており、一人暮らしでも料理がしやすい環境です。室内洗濯機置場も近く、家事の動線まで考えられた設計です。
独立洗面台

洗面台は「独立洗面所」タイプで、洗面・化粧・身支度用スペースが専用で設けられています。 鏡付きの洗面化粧台と室内洗濯機置き場が近接しており、朝の準備や身だしなみの整えやすさも魅力です。
トイレ

トイレはバス・トイレ別タイプとなっており、 独立したトイレ空間に設けられており、洗面・バスとは別に利用できるため、来訪者の対応や生活動線においても安心感があります。
バスルーム

浴室もゆとりあるバス・トイレ別仕様。シャワー・給湯設備のほか、快適な入浴環境が整っていることが物件設備情報から確認できます。 清潔感のあるホワイト系の壁面と浴槽が映える空間デザインで、毎日のバスタイムを心地よく過ごせるでしょう。
「プレール大森EAST」のおすすめポイント
お部屋探しでお困りの方へ
「 リブリッチ 大森店」は、『より良い暮らしへ。より良い住まいとともに。』をモットーにお客様のより良い未来の生活に向けてのお部屋探しを地域密着でおこなっております。大森駅周辺のお一人暮らし用のワンルームからカップル様向けの1LDK、ファミリー世帯向けのお部屋まで幅広く物件情報を取り揃えております。地元のオーナー様からお預かりしたお部屋も当社限定でご紹介中。インターネットでは見つけられない掘り出し物もご案内できます。
エリアに精通したスタッフが周辺の環境や生活インフラを詳しくご説明させていただきます。また、お子様の学校区や教育機関など子育て世帯に向けた情報共有やアドバイスもさせていただきますので何なりとご相談ください。
お客様一人ひとりの希望条件を詳しく伺い最適な物件をご提案させていただきます。大森駅エリアでより良い生活を実現するために、私たちと一緒に素敵なお部屋を見つけましょう。大森駅周辺で理想の住まいをお探しの方は、ぜひ 「 リブリッチ 大森店」にご相談ください!