コンシェリア池上 THE RESIDENCE は、東京都大田区池上5丁目に位置する2024年3月完成の地上5階建て分譲マンションです。最寄り駅は 東急池上線「池上駅」で徒歩9分、また JR京浜東北線「蒲田駅」も徒歩19分圏内と、都心や主要駅へのアクセスに優れています。間取りは主に1K〜1LDK(専有面積 約25.29㎡〜41.46㎡)で、シングルやDINKSに向いたコンパクトながら機能的な住戸がそろっています。室内は2口ガスコンロ付きキッチン、浴室乾燥機・浴室換気乾燥暖房機、洗浄便座、エアコン、室内物干し金物など、快適で実用的な設備が整っており、ワンルーム以上の住みやすさを備えています。また、共用設備としてオートロックや防犯カメラ、宅配ボックス、駐輪場/駐車場、メールボックス、ゴミ置き場などがあり、防犯性・利便性にも配慮されています。周辺は歴史ある寺院や公園など、落ち着いた住宅地として知られるエリア。駅近でありながら静かで穏やかな暮らしが期待できるため、初めてのひとり暮らしや静かな住環境を求める方にも向いています。
「コンシェリア池上 THE RESIDENCE」について

「コンシェリア池上 THE RESIDENCE」の物件概要
| 所在地 | 東京都大田区池上5丁目3番5 |
|---|---|
| 最寄駅 | 東急池上線/池上駅 徒歩9分 JR京浜東北・根岸線/蒲田駅 徒歩19分 |
| 築年数 | 2024/03 |
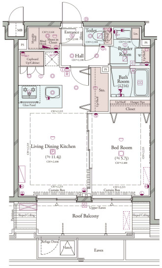
| 間取り | 1LDK |
| 構造 | 鉄筋コンクリート造 |
「コンシェリア池上 THE RESIDENCE」の室内詳細
間取り

水道(公営) / ガス(都市) / 排水(下水) / バス専用共同(専用) / トイレ専用共同(専用) / バス・トイレ別 / シャワー / コンロ種別(ガス) / コンロ口数(三口) / システムキッチン / 給湯 / 追い焚き / 洗髪洗面化粧台 / エアコン / W.INクローゼット / 室内洗濯機置き場 / CSアンテナ / BSアンテナ / オートロック / エレベータ / バルコニー / フローリング / 宅配ボックス / 駐輪場 / バイク置き場 / internet対応(その他インターネット) / 角部屋 / TVドアホン / 温水洗浄便座 / デザイナーズ / カウンターキッチン / 浴室乾燥機 / ごみ出し24時間OK / 独立洗面台 / 防犯カメラ / インターネット利用料無料 / カード決済(初期費用) / シューズボックス / 照明器具付き / オートバス / 二人入居可 / 保証人不要 / 分譲賃貸 / 敷地内ゴミ置き場
※設備をクリック頂くと設備で条件を絞ることが可能です。
共用部

居住者の快適さと安全性を重視した設備が整っています。エントランスにはオートロックと集合玄関機、防犯カメラが設置され、またエレベーター内にもカメラがあり、防犯面に配慮されています。宅配・メールコーナーと宅配ボックスが1階にあり、不在時の荷物受け取りにも便利。駐輪場・バイク置場・駐車場、ゴミ置場、防災備蓄倉庫など、日常生活や災害時にも対応する共用インフラが揃っています。
キッチン

キッチンはシステムキッチン仕様で、レンジフード、吊戸棚やコンパクトな食器棚が備わり、料理や収納がしやすい設計です。ホーローキッチンパネルと人造大理石カウンタートップで、お手入れ性と高級感も両立されています。
独立洗面台

人造大理石一体型カウンターと洗面ボウルで構成され、見た目も清潔で実用性が高く、鏡裏収納つきの三面鏡タイプ。洗濯機置き場の上部には棚が設けられており、洗面・洗濯関連の動線や収納も無駄なく設計されています。
トイレ

温水洗浄機能・暖房便座付きのシャワートイレ。便器は掃除しやすいフチレス形状で、水流によるしっかり洗浄機能(パワーストリーム洗浄)があるため、清潔性・機能性共に高水準です。さらに収納用の棚や備え付けのペーパーホルダー、タオル掛けなども設置されています。
バスルーム

ユニットバスで、浴室暖房・換気・乾燥機能付き。雨の日や夜に洗濯物を乾かせるランドリーパイプも備わっており、忙しい日常にも対応しやすくなっています。床は排水しやすく清掃性の高いフラッグストーンフロアが採用され、シャワーヘッドや水栓にメタル調の仕様を取り入れるなど、デザイン性にも配慮されています。
「コンシェリア池上 THE RESIDENCE」のおすすめポイント
お部屋探しでお困りの方へ
「 リブリッチ 大森店」は、『より良い暮らしへ。より良い住まいとともに。』をモットーにお客様のより良い未来の生活に向けてのお部屋探しを地域密着でおこなっております。大森駅周辺のお一人暮らし用のワンルームからカップル様向けの1LDK、ファミリー世帯向けのお部屋まで幅広く物件情報を取り揃えております。地元のオーナー様からお預かりしたお部屋も当社限定でご紹介中。インターネットでは見つけられない掘り出し物もご案内できます。
エリアに精通したスタッフが周辺の環境や生活インフラを詳しくご説明させていただきます。また、お子様の学校区や教育機関など子育て世帯に向けた情報共有やアドバイスもさせていただきますので何なりとご相談ください。
お客様一人ひとりの希望条件を詳しく伺い最適な物件をご提案させていただきます。大森駅エリアでより良い生活を実現するために、私たちと一緒に素敵なお部屋を見つけましょう。大森駅周辺で理想の住まいをお探しの方は、ぜひ 「 リブリッチ 大森店」にご相談ください!