東京都品川区南大井4丁目に立つ HY’s 品川南大井 は、2020年築の鉄筋コンクリート造・地上11階建てマンション。最寄りは 立会川駅(京急本線)で、駅から徒歩わずか2分という抜群のアクセスを誇り、通勤・通学に大変便利なロケーションです。物件は主に1Kタイプ/約20㎡前後のコンパクトな間取りで、単身者や初めての一人暮らしにぴったり。室内はバス・トイレ別、システムキッチン(2口ガスコンロ対応)、独立洗面台、室内洗濯機置き場、エアコン完備と、快適な暮らしに必要な設備が揃っています。共用部も充実しており、オートロック、防犯カメラ、宅配ボックス、エレベーター、バルコニーなど安心で便利な環境。さらに、インターネット使用料無料という点も魅力です。周辺にはコンビニやスーパー、ドラッグストアなどが徒歩圏にあり、日常の買い物にも困りません。駅近&設備・環境ともバランスの取れた物件で、新生活を始めたい人におすすめです。
「HY’s 品川南大井」について

「HY’s 品川南大井」の物件概要
| 所在地 | 東京都品川区南大井4丁目 |
|---|---|
| 最寄駅 | 京急本線/立会川駅 徒歩2分 JR京浜東北・根岸線/大井町駅 徒歩15分 |
| 築年数 | 2020/06 |
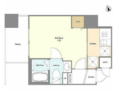
| 間取り | 1K |
| 構造 | 鉄筋コンクリート造 |
「HY’s 品川南大井」の室内詳細
間取り

水道(公営) / ガス(都市) / 排水(下水) / バス専用共同(専用) / トイレ専用共同(専用) / バス・トイレ別 / シャワー / コンロ種別(電気) / コンロ口数(二口) / システムキッチン / 給湯 / エアコン / 洗濯機置き場 / オートロック / エレベータ / バルコニー / フローリング / 宅配ボックス / 駐輪場 / バイク置き場 / タイル貼り / internet対応(その他インターネット) / TVドアホン / 温水洗浄便座 / 浴室乾燥機 / ごみ出し24時間OK / 独立洗面台 / 防犯カメラ / インターネット利用料無料 / カード決済(初期費用) / クローゼット / シューズボックス / 保証人不要
※設備をクリック頂くと設備で条件を絞ることが可能です。
共用部

HY’s 品川南大井は、オートロック・防犯カメラ・モニター付きインターホンといったセキュリティ設備を備え、安心して暮らせる環境が整っています。
さらに、宅配ボックスがあるため不在時の荷物受け取りが便利。
エレベーター完備&駐輪場・バイク置き場もあり、日常の動線や交通手段にも配慮された造りです。
キッチン

室内のキッチンはシステムキッチンで、ガスコンロ2口以上に対応。料理スペースがしっかり確保されており、自炊派にも嬉しい仕様です。給湯や都市ガス完備で、使いやすさも良好。必要最小限ながら、単身暮らしに十分な機能が整っています。
独立洗面台

脱衣スペースには独立洗面台があり、洗髪・洗顔・身支度をゆったり行える点も魅力。収納スペースや洗濯機置き場も室内に確保されており、暮らしのしやすさが考えられています
トイレ

トイレは浴室とは別室で、いわゆる「バス・トイレ別」のレイアウト。プライバシーと使いやすさを両立しています。加えて、トイレには 温水洗浄便座 が採用されており、快適な衛生環境が提供されます。
コンパクトなワンルーム・1Kながら、水回りがしっかり分かれていて、来客時や生活リズムの異なる人との同居などでも安心感があります。
バスルーム

HY’s 品川南大井 は、バス・トイレが「別」で設計されており、浴室は専用のシャワー/浴槽スペースとして独立しています。浴室には 浴室乾燥機 が備わっており、雨の日や外に洗濯物を干せないときでも 室内で洗濯物を乾かせるため、特に一人暮らしや忙しい人にとって大きなメリット。
また、給湯・都市ガスによるお湯の確保が可能で、普段使いの入浴からお湯を使った清潔な暮らしまで、十分な機能性が整っています。
「HY’s 品川南大井」のおすすめポイント
お部屋探しでお困りの方へ
「 リブリッチ 大森店」は、『より良い暮らしへ。より良い住まいとともに。』をモットーにお客様のより良い未来の生活に向けてのお部屋探しを地域密着でおこなっております。大森駅周辺のお一人暮らし用のワンルームからカップル様向けの1LDK、ファミリー世帯向けのお部屋まで幅広く物件情報を取り揃えております。地元のオーナー様からお預かりしたお部屋も当社限定でご紹介中。インターネットでは見つけられない掘り出し物もご案内できます。
エリアに精通したスタッフが周辺の環境や生活インフラを詳しくご説明させていただきます。また、お子様の学校区や教育機関など子育て世帯に向けた情報共有やアドバイスもさせていただきますので何なりとご相談ください。
お客様一人ひとりの希望条件を詳しく伺い最適な物件をご提案させていただきます。大森駅エリアでより良い生活を実現するために、私たちと一緒に素敵なお部屋を見つけましょう。大森駅周辺で理想の住まいをお探しの方は、ぜひ 「 リブリッチ 大森店」にご相談ください!