「ウィスティリア大森山王707号室」は、京浜急行本線「大森駅」徒歩13分の立地に位置する、都心アクセスと落ち着いた住環境を両立した1Rマンションです。品川・羽田空港方面への移動もスムーズで、通勤・通学はもちろん出張や旅行が多い方にも嬉しい交通利便性が魅力。
周辺にはスーパーやコンビニ、飲食店が点在し、日常の買い物に困ることはありません。一方で、山王エリアならではの閑静な住宅街が広がり、騒がしさを感じにくい住環境が整っています。
RC造・オートロック付きのため防犯面にも配慮され、初めての一人暮らしや女性の方にも安心。25㎡超のゆとりある室内空間で、オンとオフを快適に切り替えられる住みやすさが詰まった物件です。
ウィスティリア大森山王について

「ウィスティリア大森山王」の物件概要
| 所在地 | 東京都大田区山王3丁目13-4 |
|---|---|
| 最寄駅 | JR京浜東北・根岸線/大森駅 徒歩10分 |
| 築年数 | 2008/10 |
| 間取り | 1R |
| 構造 | 鉄筋コンクリート造 |
「ウィスティリア大森山王」の室内詳細
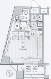
間取り

水道(公営) / ガス(都市) / 排水(下水) / バス専用共同(専用) / トイレ専用共同(専用) / バス・トイレ別 / シャワー / コンロ種別(ガス) / コンロ口数(二口) / システムキッチン / 給湯 / エアコン / 室内洗濯機置き場 / オートロック / エレベータ / バルコニー / フローリング / 宅配ボックス / internet対応(その他インターネット) / 角部屋 / TVドアホン / 温水洗浄便座 / 浴室乾燥機 / ごみ出し24時間OK / 独立洗面台 / 防犯カメラ / カード決済(初期費用) / シューズボックス / 保証人不要 / 分譲賃貸
共用部

オートロックや防犯カメラ、TVモニター付きインターホンを完備した共有部は、防犯面に配慮された安心設計。エントランスや共用スペースも管理が行き届いており、建物全体の清潔感を保っています。安心して長く住めるマンションを探している方に適した環境です。
システムキッチン

コンパクトながら機能性に優れたシステムキッチンを採用。調理スペースが確保されており、自炊派の方にも嬉しい仕様です。掃除がしやすく、日々の家事負担を軽減してくれるのも魅力。外食と自炊をバランス良く取り入れたい一人暮らしにぴったりのキッチンです。
バスルーム

清潔感のあるバスルームは、一日の疲れをしっかり癒せる空間。シンプルで使いやすい設計のため、お掃除もしやすく、忙しい毎日でも清潔さを保てます。自宅でゆっくりリラックスしたい方にとって、快適なバスタイムを支えてくれる設備です。
独立洗面台

独立洗面台を完備している点は、一人暮らし物件では大きな魅力。身支度やスキンケア、ヘアセットがスムーズに行え、生活の質が向上します。収納スペースもあり、洗面用品をすっきりまとめられるため、室内をきれいに保ちたい方におすすめです。
トイレ

温水洗浄便座付きトイレを採用し、快適性と清潔感を両立。冬場でも冷たさを感じにくく、毎日使う場所だからこそ嬉しい設備です。あると便利な機能がしっかり備わっており、ワンランク上の住み心地を実感できます。
「ウィスティリア大森山王」のおすすめポイント
お部屋探しでお困りの方へ
「 リブリッチ 大森店」は、『より良い暮らしへ。より良い住まいとともに。』をモットーにお客様のより良い未来の生活に向けてのお部屋探しを地域密着でおこなっております。大森駅周辺のお一人暮らし用のワンルームからカップル様向けの1LDK、ファミリー世帯向けのお部屋まで幅広く物件情報を取り揃えております。地元のオーナー様からお預かりしたお部屋も当社限定でご紹介中。インターネットでは見つけられない掘り出し物もご案内できます。
エリアに精通したスタッフが周辺の環境や生活インフラを詳しくご説明させていただきます。また、お子様の学校区や教育機関など子育て世帯に向けた情報共有やアドバイスもさせていただきますので何なりとご相談ください。
お客様一人ひとりの希望条件を詳しく伺い最適な物件をご提案させていただきます。大森駅エリアでより良い生活を実現するために、私たちと一緒に素敵なお部屋を見つけましょう。大森駅周辺で理想の住まいをお探しの方は、ぜひ 「 リブリッチ 大森店」にご相談ください!