東京都大田区大森西5丁目に位置する鉄筋コンクリート造・地上8階建ての分譲・賃貸マンションです。2007年築で、総戸数約41戸の中規模物件。京浜急行本線「大森町」駅から徒歩約9分、また「梅屋敷」駅も徒歩圏で、通勤・通学にも便利な立地が魅力です。外観はタイル貼りで落ち着いた雰囲気があり、エントランス周りは植栽も整えられています。共用設備としてオートロック、宅配ボックス、エレベーター、駐輪場などが備わり、防犯カメラとTVモニター付インターホンでセキュリティも安心です。室内タイプは1K〜1LDKまであり、バス・トイレ別、室内洗濯機置場、システムキッチン、収納スペースなど暮らしに便利な設備が充実しています。また周辺にはコンビニやスーパーもあり、日常生活の利便性も高いです。
グランドコンシェルジュ大森西について

「グランドコンシェルジュ大森西」の物件概要
| 所在地 | 東京都大田区大森西5丁目1-20 |
|---|---|
| 最寄駅 | 京急本線/大森町駅 徒歩9分 |
| 築年数 | 2007/02 |
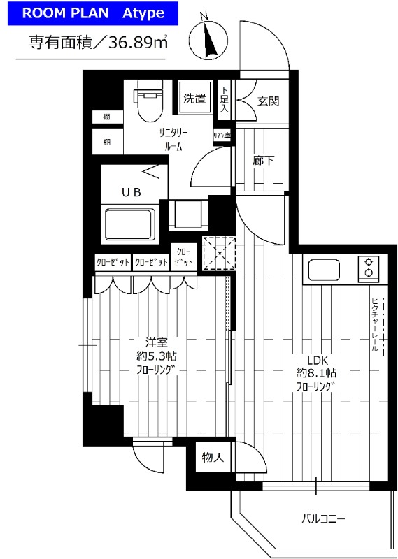
| 間取り | 1LDK |
| 構造 | 鉄筋コンクリート造 |
「グランドコンシェルジュ大森西」の室内詳細
間取り

水道(公営) / ガス(都市) / 排水(下水) / バス専用共同(専用) / バス・トイレ別 / シャワー / コンロ種別(ガス) / コンロ口数(二口) / システムキッチン / 給湯 / エアコン / 室内洗濯機置き場 / CATV / CSアンテナ / BSアンテナ / オートロック / エレベータ / バルコニー / フローリング / 宅配ボックス / タイル貼り / internet対応(光ファイバー) / 角部屋 / TVドアホン / 温水洗浄便座 / 浴室乾燥機 / ごみ出し24時間OK / 防犯カメラ / インターネット利用料無料 / クローゼット / シューズボックス / ペット不可 / 保証人不要 / 分譲賃貸
共用部

居住者の快適さと安心を考えた共用設備が整っています。エントランスはオートロック式で来訪者をチェックでき、建物内には宅配ボックスが設置されているため、不在時でも荷物の受け取りが便利です。エレベーターで各階へスムーズにアクセスでき、日々の暮らしをサポートする**敷地内ゴミ置き場(24時間利用可)**も完備。また、防犯カメラやインターホン付きエントランスなど、セキュリティ面にも配慮された共用空間です。
システムキッチン

機能性を重視したシステムキッチンを採用。都市ガス対応で2口以上のガスコンロ設置が可能なため、料理の効率が上がります。シンク・作業スペースも十分に確保されており、収納棚や調理スペースも工夫されています。ダイニングスペースと一体になったタイプや、対面式の配置などもあり、家事動線の良さと開放感のあるプランが特徴です。
バスルーム

バス・トイレ別設計で、シャワー・浴槽が独立しているためリラックスタイムが充実します。浴室乾燥機を備えたタイプの部屋もあり、雨の日の洗濯やカビ対策にも役立ちます。また、追い焚き機能が付いた部屋もあり、いつでも温かい湯船につかれるなど、日々の入浴が快適です。
独立洗面台

独立洗面台(洗面化粧台)が設置されており、朝晩の身だしなみやスキンケアに便利なスペースとして使えます。洗面所がトイレ・浴室と分かれていることで、家族や同居人と時間帯が重なっても気兼ねなく使える設計です。鏡・収納スペースも確保され、清潔感ある水回りとなっています。
トイレ

専用空間として独立しており、バスルームと別設計になっています。快適さを高めるために温水洗浄便座を装備しているため、日常の清潔感が向上。脱衣所に近い位置にあるため、入浴時と家事動線にも配慮された配置で、快適な暮らしをサポートします。
「グランドコンシェルジュ大森西」のおすすめポイント
お部屋探しでお困りの方へ
「 リブリッチ 大森店」は、『より良い暮らしへ。より良い住まいとともに。』をモットーにお客様のより良い未来の生活に向けてのお部屋探しを地域密着でおこなっております。大森駅周辺のお一人暮らし用のワンルームからカップル様向けの1LDK、ファミリー世帯向けのお部屋まで幅広く物件情報を取り揃えております。地元のオーナー様からお預かりしたお部屋も当社限定でご紹介中。インターネットでは見つけられない掘り出し物もご案内できます。
エリアに精通したスタッフが周辺の環境や生活インフラを詳しくご説明させていただきます。また、お子様の学校区や教育機関など子育て世帯に向けた情報共有やアドバイスもさせていただきますので何なりとご相談ください。
お客様一人ひとりの希望条件を詳しく伺い最適な物件をご提案させていただきます。大森駅エリアでより良い生活を実現するために、私たちと一緒に素敵なお部屋を見つけましょう。大森駅周辺で理想の住まいをお探しの方は、ぜひ 「 リブリッチ 大森店」にご相談ください!